Todo tipo de Informes
Espacio para solicitar de la manera más rápida, eficiente y segura informes en la Ciudad de Buenos Aires y la provincia de Buenos Aires. Tanto para solicitar informes sobre inmuebles como sobre las personas.

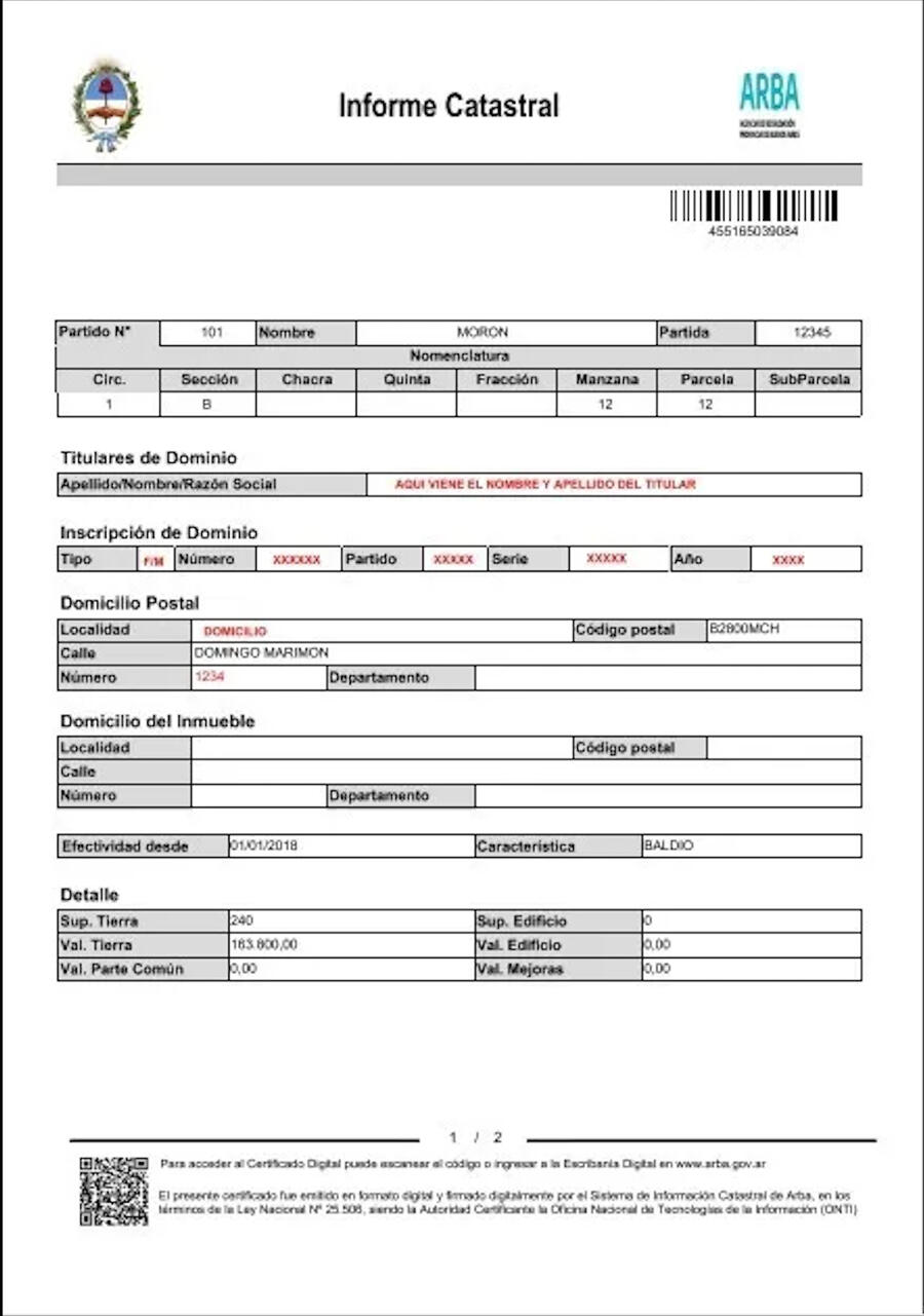
Solicita informe catastral, el plazo estimado habitual: 24 horas hábiles.
Para solicitar informe catastral se necesita la PARTIDA INMOBILIARIA del inmueble, si no lo tiene la puede obtener con el video instructivo.
TAMBIÉN NOS ENCONTRAMOS EN -MERCADO LIBRE- .
*Los precios en Mercado Libre sufren una diferencia por el costo de la misma plataforma.

La Cédula Catastral de Arba son estados parcelarios que ya has sido realizados por agrimensores o ingenieros civiles al sistema de Arba. Tiene consigo datos relevantes referidos a las dimensiones de los inmuebles por lo que puede encontrar datos como medidas, planos, ( titulares aunque en muchos casos desactualizados por eso se pide informe catastral para tener los datos mas actualizados), y datos de inscripción,*No es el estado parcelario que se solicita previo a la escritura traslativa de dominio que suelen solicitar los escribanos, por lo que en tal caso solicite al privado presupuesto del mismo.
Existen miles de inconvenientes y problemas en la venta de inmuebles cada mes incluso mediando escribanía de por medio, por eso si deseas proteger los ahorros en la compra, regularizar, dar seguridad cuando vendes, o simplemente saber la situación jurídica de un inmueble, titulares, sus porcentajes, embargos, gravámenes, inhibiciones, etc. El informe permite conocer la situación jurídica registral del inmueble al momento de su emisión.
Si desea realizar cualquier otro tipo de informe como, informe de inhibición, indice de titularidad sobre inmuebles, indice de titularidad sobre personas, informe vehicular, tanto en la provincia de Buenos Aires como en la Ciudad de Buenos Aires:PRECIOS:Cedula catastral: 9 mil.
Informe catastral: 20 mil.
(Ambos con resultado habitual en el dia).
Informe de dominio del rpi simple: 45 mil.
Indice de titularidad del rpi simple : 45 mil. (Ambos de una a dos semanas)
Los urgentes de 48hs: 90 mil tanto informe como indices del rpi.
Informe automotor con histórico: 9 mil.
El presente sitio web www.abogadoslopez.com.ar es titularidad de Estudio Jurídico Lopez Cristian Damian & Asoc., con domicilio en Lavalle 1290, oficina 613, Ciudad Autónoma de Buenos Aires, República Argentina.El estudio es responsable del tratamiento de los datos personales que los usuarios proporcionen mediante formularios de contacto, correo electrónico o mensajería.Datos recolectados: Nombre y apellido;, Datos del inmueble o persona sobre la que se solicita informe; Correo electrónico; Teléfono; Comprobante de pago.
Finalidad:
Los datos serán utilizados exclusivamente para la gestión de informes solicitados ante organismos públicos, contacto con el cliente y cumplimiento de obligaciones contractuales.Base legal:
El tratamiento se realiza con fundamento en el consentimiento del titular y en la ejecución del servicio solicitado.Conservación:
Los datos serán conservados durante el plazo necesario para cumplir con la finalidad para la cual fueron recolectados y obligaciones legales.Derechos del titular:
El titular podrá ejercer los derechos de acceso, rectificación y supresión conforme Ley 25.326 comunicándose a [email protected].Autoridad de control:
La Agencia de Acceso a la Información Pública es el órgano de control de la Ley 25.326.
El presente sitio ofrece servicios profesionales de gestión y tramitación de informes ante organismos públicos.El Estudio Jurídico Lopez Cristian Damian & Asoc. no es un organismo público ni forma parte de registros, entes recaudadores o dependencias estatales.Los plazos informados son estimativos y pueden variar según la carga administrativa del organismo correspondiente.El cliente declara conocer que el estudio actúa como gestor privado ante organismos tales como:Registro de la Propiedad Inmueble de la Provincia de Buenos Aires o la Agencia de Recaudación de la Provincia de Buenos Aires (A.R.B.A.).El pago del servicio implica la aceptación de los presentes términos.En caso de imposibilidad material de obtener el informe por causas imputables al organismo, el estudio informará la situación al cliente e iniciará los reclamos correspondientes ante el organismo solicitado.
Estudio juridico del Dr. Lopez Cristian Damian, Matricula T° XIV F° 817 C.A.Mo. C.U.I.T. 20-35880535-4, Dirección del Estudio Jurídico: Lavalle 1290, of. 613. C.A.B.A. (a metros del Obelisco), e-mail: [email protected], tel: +54 9 1150570251. Este sitio web pertenece a un estudio jurídico privado.
No somos el Registro de la Propiedad Inmueble de la Provincia de Buenos Aires, el Registro de la Propiedad Inmueble de la Capital Federal, ARBA ni ningún organismo público.
Ofrecemos servicios de gestión y tramitación profesional ante dichas entidades.
© Untitled. All rights reserved.